MGµç×Ó

ÎÒ¹úÿÄêÔ¼±¬·¢1ÒÚ¶ÖΣÏÕ·ÏÎï
ΣÏÕ·ÏÎïÖ÷ÒªÀ´×Ô¹¤ÒµÐÐÒµ¡¢Ò½ÁÆ·ÏÎï»òÆäËüÈÕ³£Éú»îÀú³ÌÖС£¾ÝÔ¤¼Æ £¬ÎÒ¹úÿÄ걬·¢µÄΣÏÕ·ÏÎïÁ¿Ô¼1ÒÚ¶Ö £¬ÇÒÔöËÙÃ÷ÏÔ £¬³Ê²»¾øÉÏÕÇÇ÷ÊÆ¡£
2013Äêл·±£·¨³ǫ̈ºó £¬Î£·ÏÐÐÒµ×ßÏò·ç¿ÚÀ˼â¡£Åãͬ¡°Ê®ÈýÎ塱¼Æ»®µÄÖð²½ÊµÊ©ºÍ¡°ÍÁÊ®Ìõ¡±µÈ¹æÔòÕþ²ßµÄ³ǫ̈ £¬Î£·Ï¹¤ÒµÉú³¤Á¬ÐøÉýΡ£
¸Õ¸ÕÒÑÍùµÄÊ®¾Å´ó¼¯»áÉÏ £¬Ï°½üƽ×ÜÊé¼ÇÖØÌá»·±£ÎÊÌâ £¬ÖصãÇ¿µ÷×ÅÁ¦½â¾öÍ»³öÇé¿öÎÊÌâ £¬ÔöÇ¿¹ÌÌå·ÅÆúÎïºÍÀ¬»ø´¦Àí £¬Î£ÏÕ·ÏÎï´¦ÀíÔÙ´ÎÒý·¢ÈËÃǵĹ㷺¹Ø×¢¡£
ÎÒ¹úÿÄêÓÉÓÚΣÏÕ·ÅÆúÎï²»Õýµ±´¦ÀíÖ±½Ó»ò¼ä½ÓÔì³ÉµÄËÀÍöÈËÊý²»¾øÔö¼Ó
MGµç×Ó(ÖйúÓÎ)ÊÔÍæ¹Ù·½ÍøÕ¾
¸¯»¯ÐÔΣÏÕ·ÏÎï
MGµç×Ó(ÖйúÓÎ)ÊÔÍæ¹Ù·½ÍøÕ¾
·ÅÉäÐÔΣÏÕ·ÏÎï
MGµç×Ó(ÖйúÓÎ)ÊÔÍæ¹Ù·½ÍøÕ¾
Ò×ȼÐÔΣÏÕ·ÏÎï
MGµç×Ó(ÖйúÓÎ)ÊÔÍæ¹Ù·½ÍøÕ¾
·´Ó¦ÐÔΣÏÕ·ÏÎï
MGµç×Ó(ÖйúÓÎ)ÊÔÍæ¹Ù·½ÍøÕ¾
¶¾ÐÔΣÏÕ·ÏÎï
MGµç×Ó(ÖйúÓÎ)ÊÔÍæ¹Ù·½ÍøÕ¾
ѬȾÐÔΣÏÕ·ÏÎï
MGµç×Ó(ÖйúÓÎ)ÊÔÍæ¹Ù·½ÍøÕ¾
Ò©ÎïÐÔΣÏÕ·ÏÎï
MGµç×Ó(ÖйúÓÎ)ÊÔÍæ¹Ù·½ÍøÕ¾
»¯Ñ§ÐÔΣÏÕ·ÏÎï
ÃÀºÃÉú»î £¬»¹Ðèϵͳ±£»¤
Ëæ×ÅΣÏÕ·ÅÆúÎïÈÕÒæÔö¶à £¬ÈËÃǵÄÉú´æÇé¿ö¡¢ÉíÌ彡¿µÃæÁÙÖØ´óÍþв¡£
ΣÏÕ·ÅÆúÎïȼÉÕ´¦ÀíϵͳÄÜÓÐЧ½«Î£ÏÕ·ÅÆúÎïת»¯ÎªÇå½àÄÜÔ´ £¬Î£ÏÕ·ÅÆúÎïȼÉÕÓàÈȹøÂ¯¼´ÊÇÆäÖеÄÖØÒªÒ»»·¡£
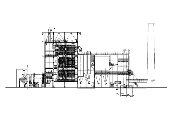
MGµç×ÓΣ·ÏÓàÈȹøÂ¯Æ¾¾Ý»Ø×ªÒ¤È¼ÉÕϵͳµÄÌØµã £¬½«»Ø×ªÒ¤È¼ÉÕϵͳȼÉÕµÄΣÏÕ·ÏÎïËù±¬·¢µÄ¸ßÎÂÑÌÆø´Ó1100¡æ½µµ½550¡æºó½øÈë¼±ÀäËþ £¬ÑÌÆø¾­¼±Àä½µÎÂÖÁÔ¼200¡æºó¾­ÑÌÆø¾»»¯ÏµÍ³¾»»¯ºóÒԽྻÑÌÆøµÄÐÎʽÅųö £¬ÓÐЧ±ÜÃâÁ˶þ‡fÓ¢ÀàÓк¦ÎïÖʵÄÉú³É¡£Í¬Ê± £¬¹øÂ¯±¬·¢µÄÕôÆû»¹¿ÉÓÃÓÚ¼¯Öй©Å¯ºÍ·¢µçµÈ £¬ÊµÏÖÁ˽«ÄÜÔ´¼«´óÏ޶ȵÄÑ­»·ÀûÓá£
MGµç×ÓΣ·ÏȼÉÕÓàÈȹøÂ¯
¾ºÆ·ÎÞÊý £¬Î¨Á¢ÒìÖ®×÷²»¿É¹¼¸º
MGµç×ÓΣÏÕ·ÅÆúÎïȼÉÕÓàÈȹøÂ¯ÊǾßÓÐÁ¢Òì½á¹¹µÄרÀûÐÍÓàÈȹøÂ¯£¨×¨ÀûºÅ£ºZL200720089181.5¡¢ZL201420335872.9£©¡£
ÔÚÎüÊÕÍâÑóͬÀà¹øÂ¯ÓŵãµÄ»ù´¡ÉÏ £¬½ÓÄɵ¥¹øÍ²¡¢Á¢Ê½¡¢È«Ä¤Ê½Ë®Àä±Ú½á¹¹ £¬¾­¼ÃÐÔÄÜ´¦ÓÚº£ÄÚÁìÏÈְλ £¬ÔÚͬÐÐÒµÄÚ¾ºÕùÓÅÊÆÊ®Ã÷°×ÏÔ¡£
º£ÄÚÊ×̨¡°µÂ¹ú¼¼Êõ¡±Î£·ÏÓàÈȹøÂ¯ÔÚMGµç×Ó½µÉú
2005Äê £¬MGµç×ÓÒý½øµÂ¹ú¼¼Êõ £¬Óë±±¾©ÖÐÌìÏàÖúµÄº£ÄÚÊ×̨Σ·ÏÓàÈȹøÂ¯ÏîÄ¿¡ª¡ªÖØÇ쳤ÊÙΣÏÕ·ÏÎï´¦Àí³¡ÏîÄ¿ÕýʽͶ²ú £¬Î£·Ï´¦ÀíÄÜÁ¦µÖ´ï50t/d £¬ÈÕ´¦ÀíÁ¿µÖ´ïͬÆÚº£ÄÚǰÁÐ £¬¿ª´´Á˺£ÄÚ½«Î£·ÏȼÉÕÓàÈȹøÂ¯ÔËÓÃÓÚΣ·Ï´¦ÀíϵͳµÄÏȺÓ¡£
µã»÷×Éѯ¸ÃÏîĿִÐо­Àí
Σ·ÏÓàÈȹøÂ¯Êг¡Õ¼ÓÐÂÊÃûÁÐǰé
¹øÂ¯ÎÞ¹ÊÕÏÔËÐÐʱ¼äÈ«¹úÎʶ¦
´ÓÊ×̨Σ·ÏÓàÈȹøÂ¯ÀÖ³ÉͶ²ú £¬µ½Î£·Ï´¦ÀíÊг¡²»¾øÀ©ÈÝ £¬MGµç×ÓΣ·ÏÓàÈȹøÂ¯µÄÊг¡Õ¼ÓÐÂÊÖðÄêÌáÉý

º£ÄÚÊ×´´µÄΣ·ÏȼÉÕÑÌÆø´¦Àí¼¼Êõ¡¢Ê®ÓàÄêµÄΣ·ÏÓàÈȹøÂ¯Éú²úÖÆÔì¾­Ñé¡¢±é²¼º£ÄÚ¶à¸öÊ¡ÊеÄÏîÄ¿°¸Àý £¬³É¼¨ÁËMGµç×ÓÔÚΣ·ÏÓàÈȹøÂ¯Êг¡Õ¼ÓÐÂʼ«¸ßµÄÌØÊâʵÁ¦
¼«ÖÂÆ·ÖÊ £¬Ô´×Ô½³Ðĵñ×Á
MGµç×Ó½áºÏº£ÄÚʵ¼ÊÇé¿ö¶ÔΣ·ÏȼÉÕÓàÈȹøÂ¯ÐÔÄܽøÐÐÁËÈ«ÃæµÄÓÅ»¯Éý¼¶¡£
Á¢ÒìÉè¼ÆµÄΣ·ÏÓàÈȹøÂ¯½á¹¹ÍêÉÆ £¬Ï¸½ÚÉè¼ÆºÏÀí £¬Í¶²ú³¬10Äê¼ä¾ùÎÞ¹ÊÕÏ
ÔËÐÐ £¬MGµç×ÓÆ·ÖÊÃû¸±Æäʵ¡£
È«×Ô¶¯¼¤²¨´µ»ÒÆ÷±ÜÃâ»ý»Ò
MGµç×ÓΣ·ÏȼÉÕÓàÈȹøÂ¯¾ßÓÐרÀû¼¼ÊõÖ§³Ö £¬È«×Ô¶¯¼¤²¨´µ»ÒÆ÷½â¾öÁË¹Å°å¹øÂ¯¿¿Õð´òÇå»Ò»òÕôÆû´µ»ÒÒ×Ôì³ÉÊÜѹ¼þË𻵡¢Ä¥ËðµÈȱµã £¬ÄÜÓÐЧµØÇå³ý»ý»Ò £¬¼á³ÖÊÜÈÈÃæµÄÇå½à¡£
ȫĤʽˮÀä±Ú½á¹¹ ÈÈËðʧÉÙ Äþ¾²ÐÔ¸ß
¹øÂ¯½ÓÄÉȫĤʽˮÀä±Ú½á¹¹ £¬´«ÈÈЧÂʸߡ¢ÃÜ·âÐÔÄܺà £¬Ä¤Ê½Ë®Àä±ÚËÄÖܽÓÄɸÕÐÔÁºÀι̽ṹ £¬Ê¹¹øÂ¯Â¯ÌžßÓп¹±¬È¼µÄÌØÐÔ £¬Äþ¾²¸»×ã¶È´ó¡£Í¬Ê± £¬¹øÂ¯Ë®Ñ­»··½·¨½ÓÄÉ×ÔȻѭ»· £¬Ê¹¹øÂ¯½á¹¹½ô´Õ £¬Äþ¾²ÐÔ¸ü¸ß¡£
µã»÷×Éѯ¼¼ÊõÕÕÁÏ
MGµç×Ó(ÖйúÓÎ)ÊÔÍæ¹Ù·½ÍøÕ¾
¹øÂ¯Éè¼ÆÏ¸½ÚÍêÉÆ ʹÓÃÊÙÃü³¤
Ä¥ËðÎÊÌâ
ÓÉÓÚÄ¥ËðÓëÑÌÆøÁ÷ËÙµÄ3´Î·½³ÉÕý±È¹ØÏµ £¬Òò´Ë½ÓÄɵÍÁ÷ËÙÉè¼Æ £¬ÑÌÆøÁ÷ƽÎȾùÔÈ £¬ÒÔ¼õÇá¾ùÔÈÄ¥Ëð¡£
©·çÎÊÌâ
¹øÂ¯½ÓÄÉȫĤʽˮÀä±Ú½á¹¹ £¬´«ÈÈЧÂʸߡ¢ÃÜ·âÐÔÄܺà £¬½â¾öÁË¹Å°å¹øÂ¯Â©·çÁ¿´ó £¬É¢ÈÈËðʧ¸ß £¬ÏµÍ³ÄܺĸߵÈȱµã¡£
¸¯»¯ÎÊÌâ
¹øÂ¯½ÓÄÉĤʽˮÀä±Ú½á¹¹ºóÑÌÆø²àÃÜ·âÐÔÄܺà £¬¿ÉÒÔ±ÜÃâÑÌÆøÖÐSO2¡¢HCLµÈ¸¯»¯ÐÔÆøÌåµÄÉø³öºÍÍⲿ¿ÕÆøµÄ©Èë £¬´Ó¶ø±ÜÃⸯ»¯¡£
ÅòÕÍÎÊÌâ
¹øÂ¯Ä¤Ê½Ë®Àä±Ú½ÓÄÉÈ«Ðüµõ½á¹¹ £¬ÀûÓÚ¹øÂ¯ÕûÌåÏòÏÂ×ÔÓÉÅòÕÍ£»Í¬Ê±¹øÂ¯ÉèÖÃÓзÀ»Î¶¯ÏµÍ³ £¬±ÜÃâ¹øÂ¯ÒâÍâ»Î¶¯¡£

ƾ¾ÝͶ²úÏîĿ׷×ÙÇé¿ö £¬Í¶²ú³¬10Äê¼ä¾ùÎÞ¹ÊÕÏÔËÐÐ £¬¹øÂ¯³¬¸ººÉÄÜÁ¦Ç¿ £¬Óû§·´ÏìÁ¼ºÃ¡£
ǰ¾°ÎÞÏÞ £¬Ê±»ú´¥Êֿɼ°
Êý¾Ý±êÃ÷ £¬ÎÒ¹úÿÄêΣÏÕ·ÏÎﱬ·¢Á¿Áè¼Ý1ÒÚ¶Ö £¬ÆäÖÐÔ¼ÓÐ7000Íò¶ÖÉÐδÄÉÈëͳ¼Æ¡£Ëæ×ÅΣ·Ï½ûÁîÆµ³ö £¬Î´À´½«»áÓÐÔ½À´Ô½¶àµÄÔöÁ¿Î£·Ï½øÈëÊг¡¡£µ½2020Äê £¬ÎÒ¹úΣ·ÏÊг¡ÓÐÍûÐγÉ2000ÒÚÔªÒÔÉϵĹæÄ£ £¬Î£·Ï´¦ÀíÐÐÒµÀ¶º£Êг¡²»¾øÀ©ÈÝ£¡

½üÊ®ÄêÀ´ÎÒ¹úΣ·Ï²úÁ¿¼°×ÛºÏÀûÓÃÇé¿ö

ΣÏÕ·ÏÎﱬ·¢Á¿Î£ÏÕ·ÏÎï×ÛºÏÀûÓÃÁ¿

2016ÄêÎÒ¹ú¸÷Ê¡ÊÐΣ·Ï²úÁ¿¼°×ÛºÏÀûÓÃÇé¿ö

ΣÏÕ·ÏÎﱬ·¢Á¿Î£ÏÕ·ÏÎï×ÛºÏÀûÓÃÁ¿
Õþ²ß¼Ó³Ö   À¶º£À©ÈÝ
½üÆÚ £¬Ò»ÏµÁÐÓйع̷ϡ¢Î£·ÏµÄ½ûÁîÏȺó³ö¯¡ª¡ª
7ÔÂ18ÈÕ £¬¹ú°ìÓ¡·¢¡¶½ûÖ¹ÑóÀ¬»øÈë¾³ÍÆ½ø¹ÌÌå·ÏÎï½ø¿ÚÖÎÀíÖÆ¶È¸ïÐÂʵʩ¼Æ»®¡· £¬ÒªÇóÈ«Ãæ½ûÖ¹ÑóÀ¬»øÈë¾³ £¬ÍêÉÆ½ø¿Ú¹ÌÌå·ÏÎïÖÎÀíÖÆ¶È £¬ÔöÇ¿¹ÌÌå·ÏÎï½ÓÄÉÀûÓÃÖÎÀí £¬´óÁ¦Éú³¤Ñ­»·¾­¼Ã£»
7ÔÂ28ÈÕ £¬»·±£²¿Ó¡·¢µÄ¡¶ÀιÌÎÛȾԴÅÅÎÛÐí¿É·ÖÀàÖÎÀíÃû¼£¨2017Äê°æ£©¡·Õýʽʵʩ£»
8ÔÂ2ÈÕ £¬»·±£²¿¡¢·¢¸Äί¡¢¹¤ÐŲ¿¡¢¹«°²²¿¡¢ÉÌÎñ²¿¡¢¹¤ÉÌ×ֵܾÈÁù²¿Î¯¾ö¶¨ÔÚÈ«¹ú¹æÄ£ÄÚ¿ªÕ¹µç×Ó·ÏÎï¡¢·ÏÂÖÌ¥¡¢·ÏËÜÁÏ¡¢·Ï¾ÉÒ·þ¡¢·Ï¼Òµç²ð½âµÈÔÙÉúÀûÓÃÐÐÒµÇåÀíÕû¶Ù¡£
ɽ¶«Ê¡¡°Ê®ÈýÎ塱ΣÏÕ·ÏÎïÎÛȾ·ÀÖμƻ®
Çຣʡ¡°Ê®ÈýÎ塱ΣÏÕ·ÏÎïÎÛȾ·ÀÖμƻ®
ºþÄÏÊ¡¡°Ê®ÈýÎ塱ΣÏÕ·ÏÎïÎÛȾ·ÀÖμƻ®
¹ã¶«Ê¡¡°Ê®ÈýÎ塱ΣÏÕ·ÏÎïÎÛȾ·ÀÖμƻ®
°Ù¶ÈËÑË÷
ÓàÈÈÔÙÀûÓà ¾­¼Ã»·±£Á½ÏàÒË
ΪÁËʵÏÖ¶ÔÓÐÏÞÄÜÔ´µÄÎÞÏÞÀûÓà £¬ÎÒÃǽ߾¡È«Á¦
ΪÁ˼õÉÙΣÏÕ·ÅÆúÎï¶ÔÇé¿öºÍ½¡¿µµÄΣº¦ £¬ÎÒÃDz»¾øÌ½Ë÷
¼á³Ö¡°ÓëÇé¿ö¹²Éú¡± £¬²Å»ªÕæÕýÁì»á¿Æ¼¼´´Á¢Éú»îÖ®ÃÀ
ÒÔ10¶ÖΣ·ÏÓàÈȹøÂ¯ÏîĿΪÀý
ÄêΣ·Ï´¦ÀíÁ¿´ï24000¶Ö
½ÓÄÉÕôÆûÔ¼72000¶Ö
Äê·¢µçÁ¿´ï2000ÍòǧÍßʱ
Äê½ÚԼȼú6480¶Ö
Äê¼õÅÅCO2Ô¼16150¶Ö
Äê¼õÉÙ̼ÅÅ·ÅÔ¼4400¶Ö
MGµç×Ó(ÖйúÓÎ)ÊÔÍæ¹Ù·½ÍøÕ¾
ЯÊÖMGµç×Ó £¬Ò»Â·Í¬ÐÐ
ΣÏÕ·ÅÆúÎï´¦ÀíÈÎÖØ¶øµÀÔ¶£»
ÎÞÂÛÒÑÍù¡¢ÏÖÔÚÕÕ¾ÉδÀ´ £¬ÎÒÃǵÄÕ÷;ʼÖÕÊÇÐdz½´óº££»
ÔÚÊØ»¤Çé¿öµÄ·ÉÏ £¬MGµç×ÓÆÚ´ýÓëÄúһ·ͬÐУ¡
VIDEO£º½üÆÚ²¿·Ö°¸Àý¼¯½õÊÓÆµ

ΣÏÕ·ÅÆúÎïȼÉÕÓàÈȹøÂ¯Ñ¡Ðͽ¨Òé

ÈÕ´¦ÀíÁ¿ 30¶Ö/Ìì
ÓàÈȹøÂ¯Ó¦Ñ¡ 3¶Ö/Сʱ
ÈÕ´¦ÀíÁ¿ 50¶Ö/Ìì
ÓàÈȹøÂ¯Ó¦Ñ¡ 7¶Ö/Сʱ
ÈÕ´¦ÀíÁ¿ 80¶Ö/Ìì
ÓàÈȹøÂ¯Ó¦Ñ¡ 10¶Ö/Сʱ
ÈÕ´¦ÀíÁ¿ 100¶Ö/Ìì
ÓàÈȹøÂ¯Ó¦Ñ¡ 12¶Ö/Сʱ
ÈÕ´¦ÀíÁ¿ 120¶Ö/Ìì
ÓàÈȹøÂ¯Ó¦Ñ¡ 15¶Ö/Сʱ
ÈÕ´¦ÀíÁ¿ 150¶Ö/Ìì
ÓàÈȹøÂ¯Ó¦Ñ¡ 20¶Ö/Сʱ
°æÈ¨ËùÓÐ ? MGµç×Ó Ô¥ICP±¸09006152ºÅ È«¹úЧÀÍÈÈÏߣº400-839-1110 / ÏúÊ۵绰£º0371-86686767
¡Á
ÍøÕ¾µØÍ¼